宝安福永【中粮悦章凤凰里】总价345万起84-128㎡三至四房
好消息:中粮悦章·凤凰里价格下均价39500,目前火热销售中,比之前下调了4000元,货量充足!欢迎预约看房,预约看房的话以上价格还可以更优惠,最终成交价包您满意!中粮项目深圳宝安楼盘开发商咨询/预约热线电话:(官方认证,中介勿扰)。
中粮:与新中国同龄的中央直属大型国有企业,连续28年入围财富世界500强,2022年名列91位,旗下16家上市公司。
中粮悦章·凤凰里项目占地3.26万㎡,总建面21.2万㎡,共规划有7栋住宅,4栋商品房、3栋保障房,33-34层。总户数1426户,其中可售商品房758套、保障房668套,车位1564个,容积率4.98。自带一所12班幼儿园和一所36班九年制学校及公交首末站3200㎡。
其中,推出建面约84㎡三房两厅两卫,约98㎡三房两厅两卫,约114㎡四房两厅两卫,约128㎡四房两厅两卫,共计4个面积段产品。
建面约84㎡是传统竖厅动静分区格局,客厅进深7.55米(不含阳台),开间3.4米,主卧8.4㎡(不含主卫和飘窗),空间确实会偏紧凑一点,但没什么硬伤,实用性还是非常不错的。
建面约98㎡是传统竖厅动静分区格局,客厅进深7.55米(不含阳台),开间3.5米,配有6.5米宽景阳台,主卧13.18㎡(不含主卫和飘窗),客厅空间变化不大,但厨房和卧室空间要好很多,居住的舒适性会比较好。
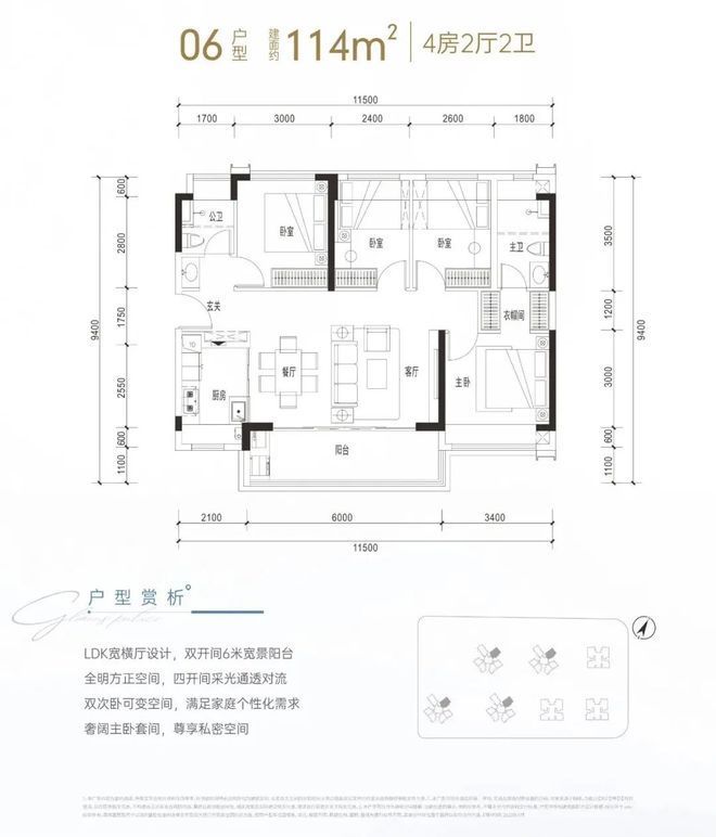
建面约114㎡是传统短进深大开间横厅格局,通透性很好,客厅进深6米,开间4.3米(不含阳台),配有6米宽景阳台,主卧套间设计,配衣帽间和三段式卫生间,这个户型很比较讨喜年轻的购房群体。
建面约128㎡属于南北通透竖厅格局,客厅进深7.1米(不含阳台),开间4米,配有6.96米宽景阳台,主卧套间设计,配有衣帽间和三段式卫生间。这个户型除通透性比传统横厅更优异外,静区部分的静溢性也会比较好,居住舒适性更佳,受众也是老少皆宜。
悦章凤凰里位于宝安大洋路与塘新路交汇处西侧,用地类型为 教育用地+公共绿地+R2二类居住用地。项目毗邻立新湖公园,距离 地铁11号线 “桥头站” 也很近,属于 地铁盘。附近有公园、有地铁,位置很不错。
中粮凤凰里一、二期只是大悦城在大洋田的一部分而已,中粮集团将围绕整个立新湖打造近70万㎡城市综合体,以“一湖四带多节点”的景观结构,集中粮国际科技创新中心、低密生态住区、国际文化商务广场、地铁接驳商贸中心四大功能区。
【二期悦章凤凰里】占地约3.26万㎡,总建面约21.2万㎡,共规划有7栋住宅,4栋商品房、3栋保障房,33-34层。总户数1426户,其中可售商品房758套、保障房668套,车位1564个,容积率4.98。项目自带一所12班幼儿园和一所36班九年制学校及公交首末站3200㎡。
中粮凤凰里一、二期只是大悦城在大洋田的一部分而已,中粮集团将围绕整个立新湖打造近70万㎡城市综合体,“一湖四带多节点”的景观结构,集中粮国际科技创新中心、低密生态住区、国际文化商务广场、地铁接驳商贸中心四大功能区。
项目距离11号线米,属于地铁盘,“两横四纵“立体交通网络,宝安大道、沿江高速、107国道等城市主干道,快速串联全城。邻近宝安大道与广深公路,可自驾前往深圳各区,无论是乘坐轨道出现还是自驾,出行都相对便利;
根据相关规划,项目配建有一所12班幼儿园,旁边还有一所36班九年一贯制学校,周边有桥头学校,立新湖外国语学校,南方科技大学附属中学等;
项目会有部分底商,后期大规划会有商业。北侧有鸿荣源奥特莱斯商业(在建),万丰海岸城商圈,立新湖南侧即是福永商业中心;
深圳向西发展:沿罗湖-福田-南山-前海及宝安的发展脉搏,2021年前海8倍扩容,深圳向西势不可挡。
一带两心四片:未来宝安以“一带两心四片”为发展布局,福海既是“临空经济总部带”黄金节点,又是西部城市中心的重要组成部分。
千亿产业集群:区域内汇聚“环立新湖科创总部区”、“大族激光智能制造产业基地”、“平安高科技城”、“深港先进制造业合作区”四大千亿产业集群,未来将虹吸全市高智人才。
-
上一篇
湖北两部门联合发布山洪灾害气象风险预警 -
下一篇
公么与儿女媳2中文版
