规划曝光!淮安这里再添一大型商业街区!
近日,淮安自然资源和规划局网站公示了,红星国际广场工程10号楼单体项目规划设计调整批前方案。
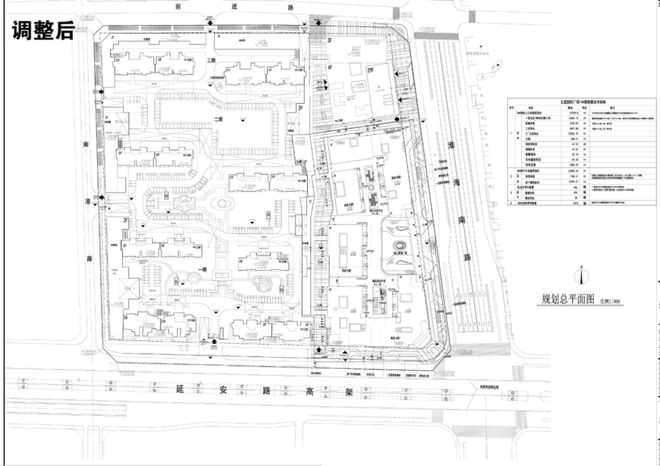
近日,淮安自然资源和规划局网站公示了,红星国际广场工程10号楼单体项目规划设计调整批前方案。
据公示的调整后的方案,红星国际广场10#商业地块变成了4座(A\B\C\D)总高5层的商业体以及1座1F的绿化活动平台以及1处核心景观广场。
商业体总体量计容面积44759.8㎡,其中智慧市集2190.59㎡,二层商业4947.68㎡,三到五层的商业22292.79㎡。
另据公示方案,红星国际广场商业共有机动车位445辆,其中微信车位58辆,普通车位405辆。非机动车车位3410辆。
据此前公开的信息,红星国际广场计划打造一座集大商业MALL、玫瑰天街、沿街金铺、SOHO公寓、精品住宅为一体的35万方城市综合体。
如今,红星国际广场10#商业规划再度调整,或许淮海南路城市主干道沿线命途多舛的商业,又将有新的动态。
