滨杭滨纷城售楼处官方网站-滨杭滨纷城楼盘评测-杭州房天下
在所有的房产品类型中,有一类房子最为硬核,这类房子就是TOD项目。在杭州,除了几大热门板块之外,TOD项目是无限接近闭眼买的选项,日后的潜力以及安全性较高。
滨江集团年轻力1号作品——滨杭滨纷城。还是横跨双地铁的TOD大盘,特别要关注的是,它还引进杭二中白马湖教育集团在家门口设立分校,目前已经在建中了!
事实也是如此,滨杭滨纷城沉潜了数月,一经入市,就点燃了杭州年轻置业者的购房热情。凭借实力(双地铁TOD+名校引进、硬核产品力、大品牌背书、超高性价比、送车位&家装包等利好政策等),走出了一骑绝尘的热销之路!
,滨杭滨纷城,领出首张预售证,首开13栋、14栋、17栋!项目精装限价19800元/平,首开劲爆价低至17420元/平。据说还额外送车位!!!最低首付不到30万元!!!12月10日,首开登记结果出炉,一共有1308组登记,其中人才就有16组!整体中签率19.88%,有房户中签率低至9.81%!
滨杭滨纷城售楼处电线日傍晚,项目加推登记结果出来了,又有1222组客户参与登记,中签率21.6%,人才11组,有房户中签率低至11.21%,延续火爆态势:
下午,项目马不停蹄地领出三开预售证,又一次加推9/10/12幢一共3栋楼,货量依然不少,单价略有上涨!
这次登记情况会如何?还是非常火热,一共999组登记,整体中签率约25%,占多数的有房户中签率约13%!
下午,一周不到的时间,项目又又又又取证了,公示四开预售证,还是加推3栋楼,底气十足!都不用时间来蓄客的吗?让人叹为观止!
四开登记结果:一共778人登记,中签率37%,略有上升。滨纷城还是“很好卖”,年轻人首置必选项!
,荣登2024年全杭州均价2万内年度三冠王(成交面积、成交套数、成交金额),领跑杭州速度!(信息来源:克而瑞)最新消息,滨杭滨纷城,预计农历年后即将加推新品2-3-6#楼,首付18万起,建面约89-112方TOD复合大城。
项目区位示意图过程稿,非最终交付标准年轻人的高效出行:双站TOD领衔的“枢纽社区”,带来便捷通行场域
(在建)两大站点,以轨道打破壁垒,一条地铁直达钱江新城、城东新城、滨江、西湖等高能区域,更高效的日常通勤外,还能享受到一脉市心的生活配套。
,会打造垂直交通核,配备归家通道,无需接驳,真正做到“快捷进出站”,更无惧晴热雨雪,业主地铁归家的舒适性拉满。年轻人的缤纷聚场:大型商业+广场等璀璨地标林立,杭州新一代打卡地
滨杭滨纷城售楼处电话:据了解,这是杭州二中白马湖教育集团的首次跨区域发展,新学校未来将与传统强校杭州二中白马湖学校(以下简称“杭二白马湖学校”)开展合作办学,共建一所公办九年一贯制学校,总占地面积4.4万㎡,规划36班(其中小学24班,中学12班)
整体看下来,滨杭滨纷城,有双站TOD、有活力街区、有运动场地、有公园露营、有潮流地标、有艺术氛围……
等,还是经典9号库金色,同源滨江海岸系的金色铝板,远远一看尊崇感油然而生,年轻人也值得拥有好房子。
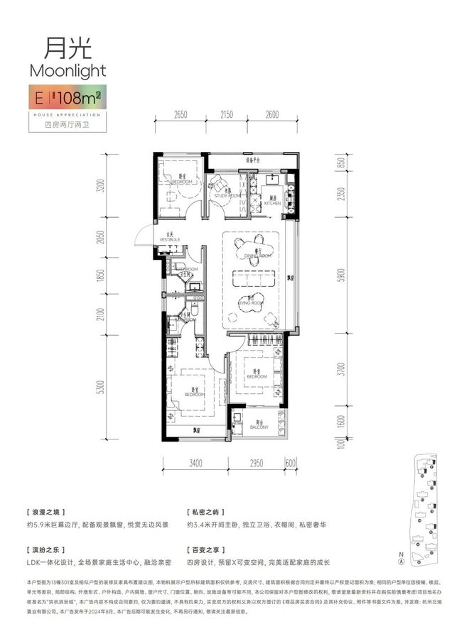
270度环绕式采光,视野绝佳;主卧独立卫浴、走入式衣帽间、南向阳光飘窗,享优雅随心的寝居感受;
4房功能齐备。滨杭滨纷城售楼处电话:在我看来,这个户型是杭州新一代年轻人人生首套改善置业首选,可一步到位。小胖君抢先体验了效果展示间,带回部分实拍图:
「1字头」抄底杭州,年轻人更轻松置业机会,就在滨杭滨纷城抄底杭州的正确姿势是什么?具体来说,可以遵循几个原则:
根据规划,滨杭滨纷城片区将是“杭州北部门户枢纽、临平北城市副中心”,建成杭州融沪桥头堡的北部门户、引领临平北部发展的城市新中心、国家级开发区产业升级创新策源地。
滨杭滨纷城售楼处电话:要知道,买房跟着硬核科创产业走,不仅有着极强的资金集聚效应,也是一个片区虹吸年轻精英的奥义所在。
区别于其它以“地产先行”的新区,滨杭滨纷城所在区域,在推进宏伟规划的同时,还做到配套与时俱进。
,衔接高铁站、钱江新城,加上规划的二期将直抵西湖附近,将滨杭滨纷城未来直通市中心照进了现实。
,精装均价约19800元/平,就比杭州新房均价少了近2万,断崖式下跌!且主力户型建面约89-108方,套均总价200万都不到,直接比平均线少了一半多!你敢信?!
购买期房的话,则一定要确定开发商五证两书一表齐全,这是关于买房的基本知识中最重要的一项,所谓五证就是指《国有土地使用证》、《建筑用地规划许可证》、《建筑工程规划许可证》、《建筑工程施工许可证》和《商品房预售许可证》,有了五证两书才能办房产证,这是个先决条件,而且这个过程中开发商拿地的出让金都结清,楼盘本身没抵押才行。两书为质量保证书和使用说明书。这两书是房屋竣工并且通过验收后获得的。房子盖完了没有通过验收不行。一表为竣工备案表。这个是由当地质检站在所有验收工作完成以后加盖公章交给开发商的。2、选择开发商
新手第一次买房注意事项中慎重选择开发商也很重要,因为一个好的开发公司它必然有一个好的理念和好的团队、好的物管服务,它已经开发和服务的小区是经得起时间的检验,可以得到业主的口碑传颂的。好口碑的开发商是房屋质量的保障,一般好的开发商资质高、资金充足。
新手购房须知,户型的挑选不能马虎,不同朝向、不同通风采光的户型会直接影响业主的居住舒适度,maigoo小编为大家整理了几点:1、南北通透,户型方正,采光通风俱佳;2、朝向优劣:正南东南西南东西北;3、对侧通风,是通风条件最好的;4、房子内部,各功能区域面积分布均匀,开间:进深=1:1.5;5、动静分区,卧室与客餐厅、厨房不要挤在一起。
挑选楼层也像挑选户型一样重要,初次买房须知中的关键一项,不同的楼层,房子的通风采光、视野景观以及业主的私密性、居住舒适度,甚至噪音污染、出行便利性等都或多或少有所不同,一般来说,低楼层出行更方便,如遇意外也更容易逃生,但是通风、采光、视野等相对高楼层较差,私密性较差,噪音污染也严重;高楼层视野好、空气清新,通风采光都更佳,但是如果电梯故障,可能会影响出行,总的来说,一栋楼的1/3至2/3之间的楼层是较好的楼层,属于不高不低的“黄金楼”。
学无止境,能看到这篇买房须知的18个常识就说明读者朋友已经在努力了,很多购房者认为,当下房价过高,所以买房时,一般会在同等区域、同等地段选择价位便宜的楼盘,或者买房时看到区位好而不管户型、内部环境、物管服务、生活成本等,这就像买一件衣服,你只管款式而不管布料、价格等,正确的做法是多学习选房知识,关注户型好坏,房屋质量等干货。6、评估购房能力
即使掌握了很多关于买房的基本知识,但很多人却对自己的经济能力认识不清,这也是很不明智的,买房之前一定要评估自己的购房能力,量力而行,对于刚需族来说,由于经济能力有限,所以都会采取贷款的方式买房。而贷款每个月需要交一定数额的月供,为了保证生活质量不受影响,避免断供的风险,maigoo小编建议月供的数额最好控制在总收入的50%以内。而且不仅要评估当前收入,还包括你接下来三至五年内短期的工作发展潜力以及未来十年至二十年后可能的职业安排,同时还包括你平时的消费习惯,以及家人的健康状况等,最后估算出一个数据。
7、看优惠等待时机抓住又会也是买房须知的重要常识,买房子原本要花比较多的钱,买房子的时候能省一些算一些,所以购房者要懂得一些买房子的优惠政策。对于初次购买房屋的朋友来说,一般情况下都能享受首套房优惠政策,也就是说只要没买过房或没有贷款记录就可享受,开发商经常找“托”这样让购房者觉得“一房难求”在买房的时候职业顾问也会说再考虑一天就会被别人抢走房源,这样一来就会冲动消费,大家一定要耐住性子。8多看多比较
年轻人买房时,最好不要好大喜贵,而且还想着一步到位,一定要像买东西一样货比三家,经过比较能获得有些经验,而房产综合性太强,它包含的面太宽,主要看你在比较过程中关心的内容全不全面,而且根据自己能承受的范围做出合理的决定,因为没有十全十美的房子,买房也不可能考虑到各方面的细节。
买房当然要挑楼盘,挑小区,挑户型,但是也不能只看房子,还要看房子的位置,这也是买房须知和注意事项中很重要的一点,内行人买房首先看的是地段,华人首富李嘉诚也说过:“决定房地产价值的因素,第一是地段,第二是地段,第三还是地段。”好地段的房产保值或升值的空间更大,购房风险相对城市偏远郊区较小,就算未来房价暴跌,首先下跌的也是地段较偏的房产,地段好的房产房价一般都是最后下降的。建议大家在购置房产时,要切记紧跟城市发展的方向。
什么是楼间隔?就好似两相邻楼的外墙面距离,同一个小区两栋相邻的楼与楼之间的距离,建筑间距的控制是为了保障人们工作、生活的质量与安全,大楼间隔宽的住宅区不一定能建造好的住宅区,大楼间隔特别宽也能建造好的住宅区,间隔宽是业主生活安静、隐私、视野广阔,也是景观建设的平台,但是利用平台建造景观安静、隐私、舒适的环境相反,大楼的间隔并不特别宽,但是这样的理念和团队创造了美丽、舒适、健康的环境,也被称为好的住宅区。
重点看小区环境是买房须知的重要常识,小区景观、绿化、配套等与生活密切相关,更是楼盘质量的体现,大超市、医院、学校,关乎生活便捷度;是否是学区房,关乎小孩上学;附近的公交线路、地铁线路,交通是否便捷;好小区内部和周边的配套设施也相对完善一些,不仅水、电、燃气、煤气、宽带、停车场、公共厕所、多功能儿童活动空间、园区休闲场所、物业公司等内部配套设施能满足业主的日常居住需求,周边还有便利店、菜市场、食品店、药店、小型超市、学校、公交站点或者地铁站点等多功能服务配套满足业主以及孩子的衣食住行的更高需求。
选择楼层的时候经常是不随人愿,既然选不到“黄金楼层”,至少不要选到一些太糟糕的,比如极端层,顶层和底层不建议买,高层住宅如果选择低楼层的房子的话,采光可能就不是很好,而且容易潮湿,发霉,滋生蚊子。顶层容易出现漏水现象,虽然能修理但耗时耗力,修理时间极可能被无限延长。设备层则是专门供水,供电的中间楼层,要是常年居住在设备层的附近的话,不仅机器设备的噪音把人折磨得无法休息,连机器的辐射也会影响人的身体健康。
很多购房者认为房价才是买房最关键的因素,其实不然,适不适合自己才是最关键的。在自己能力范围内,如果房价偏高你也能接受,这样你就会觉得地段好、配套好、户型好、楼层好的房子才是最好的,就算房价贵点也愿意买。但是,如果你能力有限、购房资金有限,那么估计买哪里都会觉得贵,甚至觉得房价越便宜越好,价格挑选要比较个人承受范围、交通状况、社区环境、户型结构等条件衡量楼盘价格。
买房一定不要贪大是买房时的重要事项,面积以适用为原则,不要为大而大,现在年轻人都喜欢独自出来居住,所以一般买个80、90平的大两室或者小三室就完全足够居住,非要买大房子,不仅不实用,而且还会涉及到一定的税费,国家区分豪宅和普通住宅的分界线平米,所以在购买房子的时候,不要超过140平,除了税费要多交不少,对于一些物业费取暖费等等各个方面都会高出很多,长时间算下来,多出的这些没准在日后还能多出一套首付钱。
考虑孩子是买房时非常必要的,既然婚恋是买房子的重要原因,那么孩子就是一个不得不考虑的因素,首先在购房的户型上必须考虑孩子的房间,购房的户型最好要两居室以上;其次那就是注意考察周边的教育设施配套,孩子要上学,从幼儿园到小学到中学,同时还要考虑孩子路上的安全问题,尽量选择距离近的房子。这样可以给孩子节约大量的时间,让孩子有充裕的时间学习和休息。
物管的好坏要看有没有专业的团队,有无完善的设施、健全的内部管理。不同的物业公司所做的服务千差万别,物业公司能否尽善尽美地完成自己的任务牵扯到小区的整体质量。保障安全、常规服务是物管的基本职责,好的物管主要看能否与业主达到共建和谐的社区环境,改变邻里关系为业主提供交流平台。活动的目的,不止热闹高兴,而是使业主与业主间、业主与物管间更加融洽,物管的用心和细心能不能坚持下去是最重要的,最后的评比结果是业主的口碑效益。
“订金”与“定金”是不同的法律概念,这是开发商欲规避法律责任的惯用做法,《中华人民共和国担保法》规定:定金的数额由当事人约定,但不得超过主合同标的额的20%。商品房交易中,买家履行合同后,定金应当抵作价款或者收回;若买家不履行合同,无权要求返还定金,开发商不履行合同的,应双倍返还定金。而订金并非一个规范的法律概念,实际上它具有预付款的性质,并不具备担保性质。很多开发商会打出多少抵多少的优惠活动,但是需要缴纳一定的定金,要知道这里交了的定金是不能退的。辨别“订金”与“定金”是买房必知的重中之重。
购房者应慎签认购书,认购书是商品房买卖的预约合同,是独立合同。签认购书时常会引发一系列纠纷,具体表现在购房者要收回定金,而发展商却不一定会退还。因此,为避免过多的麻烦,购房者在决定买房,可以向发展商提出看正式合同样本,房屋买卖合同一般只会对房子本身做出承诺,但是售房者很可能为了签单而给你很多的口头承诺,在觉得正式合同可以接受的情况下,再签署认购书,以免被套牢。
滨杭滨纷城售楼处电话: 如有问题欢迎来电咨询,来电即可享受买房优惠! 预约来电尊享购房优惠,可预约案场内部销售人员,专业一对一热情服务,让您用专业眼光去买房。 楼盘项目全面介绍,本电话为开发商提供线上售楼处电话,楼盘项目全面介绍(包含楼盘简介,楼盘积分,房价,价格,楼盘地址,户型图,交通规划,备案价,项目配套,楼盘详情,售楼处电话,最新消息,最新详情,周边配套,最新进展等详情咨询)楼盘项目全面介绍,本电话为开发商提供线上预约售楼电话,楼盘项目全面介绍(包含楼盘简介,均价,房价,现房,期房,别墅,叠墅,大平层,价格,楼盘地址,户型图,交通规划,备案价,备案名,项目配套,样板间,开盘时间,认筹时间,楼盘详情,售楼处电话,最新消息,最新详情,周边配套,一房一价,最新进展等详情咨询)楼盘详情丨价格丨更多优惠丨机不可失丨欢迎致电丨诚邀品鉴!售楼处位置丨特价房丨工抵房丨剩余房源丨户型图丨最新消息丨免责声明:将文章内容综合来源于网络、只作分享,版权归原作者所有!!如有侵权,请联系我们,我们第一时间处理如有问题欢迎来电咨询,专业一对一热情服务,让您用专业眼光去买房。如果您想了解更多楼盘详情,欢迎提前预约拨打
最低40万元一套,李嘉诚家族甩货大湾区400套房源!一套房价格仅约香港同面积首付,中介称“很多香港客户来买”
44%市场份额!印度首超中国成为美国最大手机供应国,中国从61%降至25%位列第三【附智能手机行业市场分析】
8月1日起:油价一夜大反水!猛烈暴跌大变脸?调价后加油站92、95号汽油,零号柴油最新限价!
黄金交易提醒:鲍威尔一句话让市场颤抖,金价断崖式暴跌,关注100日均线
华为 MateBook Fold 非凡大师折叠屏笔记本获 HarmonyOS 5.1 升级
-
上一篇
宁乡:逐绿而行向绿而兴! -
下一篇
汝城林下经济“芝”点开花共筑湘粤赣绿色产业带
