成都「天府半岛」售楼部电话查询网站首页详情实时房价走势分析及近期楼盘活动资讯一览。
有多少人还记得去年3月的摇号盛况,180套准现房,精装单价1.24万/㎡起,约5.2w组家庭摇号,那中签率,比“985”、“211”录取率还低!
但自那以后,项目三次取证,均为大平层和联排产品,建面约235㎡+,门槛已来到330w,明显不是刚需、刚改的菜!
熟悉的配方,还是熟悉的味道。但不同的是,本批次为期房,预计2026年下半年交付!(具体交付时间以售楼部为准哈)
周边配套不多提,感兴趣的小伙伴可查看往期踩盘链接:恒大天府半岛已取证!总价约114万起,1124套房源!
了解天府半岛的小伙伴应该都知道,7期产品,大多为2梯5户、3梯6户的48F超高层,建面约90-120㎡套三、套四户型,坦率说,很刚!
根据去年天新官网公布的规划,7期77-80#楼由39-48F统一调整为32层,楼栋高度调整为99.6m,同时增加一台电梯,升级为3梯4户!
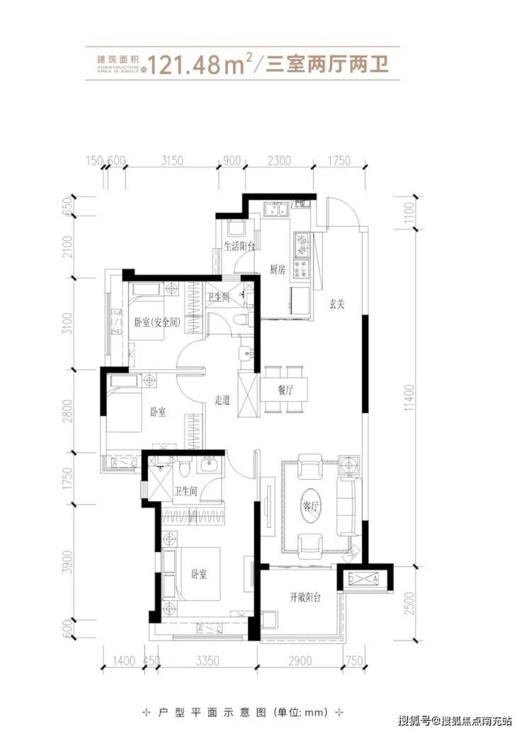
其次,本批次只有建面约121㎡套三双卫、142㎡套四双卫两个主力户型,更偏向刚改、改善,且相对纯粹!
拿121户型来说,竖厅设计、进深超过10m,但开间只有6m出头,阳台只有约2.9m;两个次卧面积都不足10㎡,整体相对紧凑、无太多浪费空间。
价格方面,去年3月,6期高层精装单价约1.24w元/㎡起,而本批次精装单价1.3w-1.5w元/㎡,差异不大。
目前,7期紧挨着的三期,今年以来的二手房成交价1.4w-1.8w元/㎡;四期稍高一些,成交价1.6w-1.8w元/㎡。
声明:本文由入驻焦点开放平台的作者撰写,除焦点官方账号外,观点仅代表作者本人,不代表焦点立场。
【万科和园】售楼部热线(已认证)【万科和园】客户经理电话:(微信同号)温馨提示:看房请提前致电售楼部预约!享内部优惠政策!【有免费看房车接送服务,如需预约,请致电售楼部】
【悦蓉九州】售楼部热线 (已认证)【悦蓉九州】项目经理热线 (微信同号)温馨提示:为了给您提供更高更好的接待服务质量,看房请提前致电售楼处预约!【有免费看房车接送服务,如需预约,请致电售楼处】
【天府映屿】售楼部热线 (已认证)【天府映屿】项目经理热线 (微信同号)温馨提示:为了给您提供更高更好的接待服务质量,看房请提前致电售楼处预约!【有免费看房车接送服务,如需预约,请致电售楼处】
【隆科熙境】售楼部热线 (已认证)【隆科熙境】项目经理热线 (微信同号)温馨提示:为了给您提供更高更好的接待服务质量,看房请提前致电售楼处预约!【有免费看房车接送服务,如需预约,请致电售楼处】
【远达天宸名邸】售楼部热线 (已认证)【远达天宸名邸】项目经理热线 (微信同号)温馨提示:为了给您提供更高更好的接待服务质量,看房请提前致电售楼处预约!【有免费看房车接送服务,如需预约,请致电售楼处】
重庆「新天泽江上雲境」售楼热线:预约专线接待,获取最新房价动态走势及内部独家购房优惠,尊享定制看房服务。
重庆「佳兆业晓岸云起」售楼处电话、项目区位、最新价格及在售户型面积信息一览,为您提供全面的楼盘资讯。
重庆桥达巴南茂宸广场公寓售楼处电话、户型详情及价格解析,全面评测楼盘品质与性价比,为您提供置业参考。
成都「和泓紫山云庭」售楼部电话、最新房价信息、在售户型详情及当前优惠政策全面解析,置业咨询一站式获取。
郑重提示:本网站作为房产信息聚合类导航网站,仅为方便广大用户掌握信息而提供一站式无偿浏览、查阅的功能,本站楼盘信息并非广告,最终请以政府部门登记备案及开发商公布为准。错误信息举报电话,邮箱。 或点此进行意见反馈,也可点此进行举报投诉。
-
上一篇
官方热搜丨金地环湾城官方售楼处:传世匠造最后席位热销中! -
下一篇
男人j桶进男人p
