2025首创龙湖天琅售楼处电话官网中心资讯-天津楼市房天下
龙湖地产作为地产巨头,嗅觉灵敏,迅速布局闵行马桥,打造#龙湖天钜#和#龙湖天琅#两个项目,双子星闪耀闵行,且不限购不限贷。
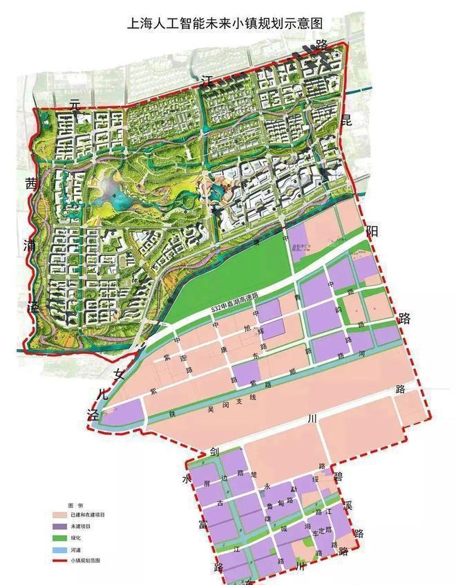
临近三大科学园区以及轨道交通5号线,背靠航天城、紫竹科学园区、闵行开发区等高尖科创园区,汇集微软惠普等世界500强企业,高知人才荟萃。
众多科创园区落户闵行马桥,人工智能未来小镇、闵行创新创业走廊、紫竹高新区等科创园区,以及上海交大、华师大等985高校、微软、英特尔、通用等全球500强企业,高端人才集聚。
借助规划红利,闵行马桥势必将产生强大的人才虹吸效应,随着人口的大规模涌入,区域将成为上海新的置业热土。
【龙湖天琅】提出“跨界商务”理念,规划花园联排、商场、租赁公寓,综合解决上班族离家远的交通、时间和日常生活问题,着力
,采用平顶直墙,极简留白的建筑语言,很好的展现出虚实有度,删繁就简,大方得体的花园式办公建筑性格。
在石材方面采用德国金砂,密缝海棠角,含蓄的分格表情,隐含江南传统窗棂的造型轨迹。细节的勾勒,精致的铝板,良渚新石器时代线型文化的史前记忆。同时,又将西方古典装饰风格植入现代建筑语系,使传统意境和现代风格相互融合,创造出富有深厚文化底蕴的现代建筑景观。
项目注重“因地造景”的理念,充分融入龙脊文化,以龙湖闻名的造园造景方式,将商业街与花园办公区域实现经典比例和现代风格的完美融合,为商务人群打造五维立体景观,将商务生活生态化。
植物配置方面充分结合地形利用堆坡造景的手法,营造出五重立体园林景观,在景观细节打造上,选用乔木、花树、灌木、花卉、地被等多重景观植物,形成四季皆绿,繁花竞现的缤纷景象,每一处都细心打造,真正做到目之所及,皆为美好。
自带约3万方商业体“星悦荟”,囊括了餐饮、零售、教育、超大型连锁超市-元华超市、生鲜超市、健身运动会所以及巨幕影院等业态。还引进了诸多网红品牌,如“那都不是锅”,另有KFC、屈臣氏、Costa等知名品牌进驻。
作为龙湖布局上海的首座情景式商业,星悦荟以低矮古朴的建筑,铸就四大时光主题的商业空间,拥有设计独特的时光之门,星空连廊等,无不吸引着人们的眼光。
天津『首创龙湖天琅』售楼中心:转接9999【官方认证】天津『首创龙湖天琅』售楼处电线【网站认证】天津『首创龙湖天琅』售楼处电线【官网认证】
9月1日起执行,多地最低工资迎来普调,北京:全日制2420元→2540元 ,非全日制每小时26.4元→27.7元
中国钓王钓获73斤野生花鲢:觉得好重 现场看鱼线岁尿毒症晚期女生患病四年:跑一天外卖 换一天生命
中国钓王钓获73斤野生花鲢:觉得好重 现场看鱼线岁尿毒症晚期女生患病四年:跑一天外卖 换一天生命
-
上一篇
实时期货 -
下一篇
回望港澳抗战烽火岁月 铭记历史 开创未来
