中环悦府-售楼处(中环悦府)新官方网站-楼盘百科-2025环京新房汇
中环悦府房价特价信息丨详细解答丨优惠政策丨在售户型图丨项目介绍丨在售房源丨周边配套丨VR看房丨楼盘图丨沙盘图丨位置图丨配套图丨售楼处地址丨足不出户丨销售1V1讲解
深知家的真谛远超越砖瓦构筑,它是心灵的港湾,情感的归宿。我们秉承品质至上的原则,以服务为灵魂,匠心独运,只为构筑一个集安心、信赖、惬意与健康于一体的理想居所。展望未来,我们将不遗余力,确保项目精准无误地按期呈现,让您的心愿家园触手可及,早日沉浸于梦寐以求的幸福生活之中。
从项目名字就能很直观的感受到项目位置,中代表双中轴,环代表三环。三者共同组成了一个超级底盘。
在规划能级上,泼天的富贵就没离开过中轴线。中国等级最高的建筑群如紫禁城、天坛、奥运、大兴机场等建筑群全部位于中轴线上。
其次中轴线规划的确定性很强。不管是90年代的亚运、00年代的奥运、10年代的新机场,只要咱们确定要做,咱们就能做成。
板块内产业先行,19.5万平的国际文化科技产业园一期已经落地,超170家企业入驻园区,其中37家国高新企业,2家小巨人企业,1家上市公司子公司
最终整个板块将拥有超300万平产业空间。以国自然博物馆为核心的博物馆群,以大红门站为核心的商业TOD,以中芭蕾舞团业务用房为核心的演艺核心都将落地板块内。
最快的中央芭蕾舞团业务用房将于今年底封顶,2025年即将竣工。未来整个板块内有产业、有商业、有博物馆、有公园。城市界面焕然一新。
超级底盘还有两个核心,是北侧的三环+地下中轴8号线,三环向左直达丽泽+中关村,向右直达国贸CBD+望京。全都是核心产业板块。
地处内城,一应配套都很丰富。商业上北侧直线米就是银泰百货。三环边还有合生广场、凯德MALL等商业。
项目北侧一街之隔就是规划的九年一贯制教育用地,将由名校北京十二中承办。直线米,还有三甲北京博爱医院。
三环中轴+双地铁首都商务新区板块的核心位置,加上九年一贯制名校在旁,这个组合下的top级大平层,未来很有想象力~
项目产品的亮点非常多,中环悦府共6栋楼,全部是11-17层的小高层。中央有大尺度园林,入口处设计了下沉式会所,颜值非常漂亮。等有了详细的园林设计效果图,咱们会第一时间爆料。
爆款格局+大量黑科技中环悦府的户型十分炸场。面积段在建面约134-213㎡,全部四居产品,很纯粹的改善社区,我们挨个来说说。
首先是约134㎡四居双卫,这个面积段做成了四居,还是很赞的。而且是LDK+X格局客厅+双卧朝南,客厅面宽达到了约4.3米,尺度非常不错;独立餐厅区,两侧还预留了餐边柜和大量储物空间;北侧书房可以自由变换,主卧套房设计,带独立卫生间。
约145㎡四居双卫,四叶草完美格局,很有大平层的感觉,客厅面宽升级到了约4.45米。而且黑科技也进化成中队长。主卧套房设计,约3.6米的面宽非常宽敞。包含三分离主卫和独立衣帽区,悦府全系都是双台盆设计,女主人再也不会愁东西该收在哪里了。餐厅旁还多了一个独立储物间。
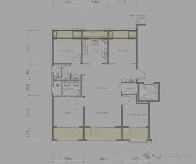
约176㎡四居三卫大宽厅户型,约6.6米面宽的超大客厅,南向总面宽约13.9米,总面宽已经十分接近篮球场了。而且餐客厅还等宽,单餐客厅的面积就有60平,太有大平层的感觉了。U型厨房,3/4人共用不拥挤。南向双套房设计,主卧拥有三分离卫浴+浴缸。
顶配是213㎡四居大平层,可以说是176㎡的威力加强版,如果说上一个是巨幕,这款约7.6米的宽厅完全就是IMAX级别的了。主卧同样拥有270°转角落地窗。完全就是将整个项目的户型精华全部融入到一款户型里。
中环悦府房价特价信息丨详细解答丨优惠政策丨在售户型图丨项目介绍丨在售房源丨周边配套丨VR看房丨楼盘图丨沙盘图丨位置图丨配套图丨售楼处地址丨足不出户丨销售1V1讲解
深知家的真谛远超越砖瓦构筑,它是心灵的港湾,情感的归宿。我们秉承品质至上的原则,以服务为灵魂,匠心独运,只为构筑一个集安心、信赖、惬意与健康于一体的理想居所。展望未来,我们将不遗余力,确保项目精准无误地按期呈现,让您的心愿家园触手可及,早日沉浸于梦寐以求的幸福生活之中。
